櫃子做到頂,18坪收納多炸1倍!開箱我的舒適日系小宅
一、買房過程
買房的動機是覺得原本的家交通不太方便,上班要轉公車或是騎車,有時候加班到很晚回家都不知道幾點了,覺得光是通勤就好累啊~後來就覺得與其要再搬家,還不如就買房吧!(剛好和先生存錢也存了好一陣子了XD),所以買房目標非常明確,就是買離捷運站近、有2+1房的房子,當初也沒指定區域,但可能是緣分關係,就找到了一間很喜歡的房子,離捷運站近而且格局也符合所需。
二、原屋況&找設計師的過程
雖然我們是小資夫妻,買了房後荷包大傷(哭),但還是認為一定要找設計師,以前租房子時只能買一些現成家具東湊西湊,老是覺得家裡好沒溫度又好亂,所以那時就立志未來如果買房,不管怎樣也要花錢重新裝潢!
還有另一個原因是,房子前屋主有先客變過,有的門都被他退掉了,加上天花板也沒有做,所以在這個狀況下就更堅定要找設計師~
來看看原屋況吧↓↓↓
.jpg)
▲沒天花板,勢必要整個木作起來。
.jpg)
▲廚房、儲藏室、多功能室的門都被前屋主客變退掉了,所以要再另外裝。
.jpg)
▲有個大優點是整個都已經鋪了木地板,顏色也還不錯,我們就決定續用了,預算可以少花一些,讚啦!
那~礙於預算不多的關係,我們開始上網海選設計公司,看有沒有設計師能接受我們的預算….QAQ那時問了一個剛做完裝潢的朋友,他建議我們把網路上喜歡的圖截下來,去多了解喜歡什麼風格,這樣會比較好找設計師,結果截一截整理給他看,他竟說這大多都是他設計師的作品啊!我們當時就是呈現一個驚呆了的臉,但也不忘馬上請他提供設計師的聯絡方式,就這樣找到了木寓設計的Joanna來操刀設計,她說我們的預算是做得起來的!怎麼這麼幸運~有種天降甘霖的感覺XD
三、我們的需求&改造重點
因為原先就是看上房子的好格局,加上預算關係,有明確表示不要動到格局,就以現有的樣子去規劃就好~重點大概是這些:
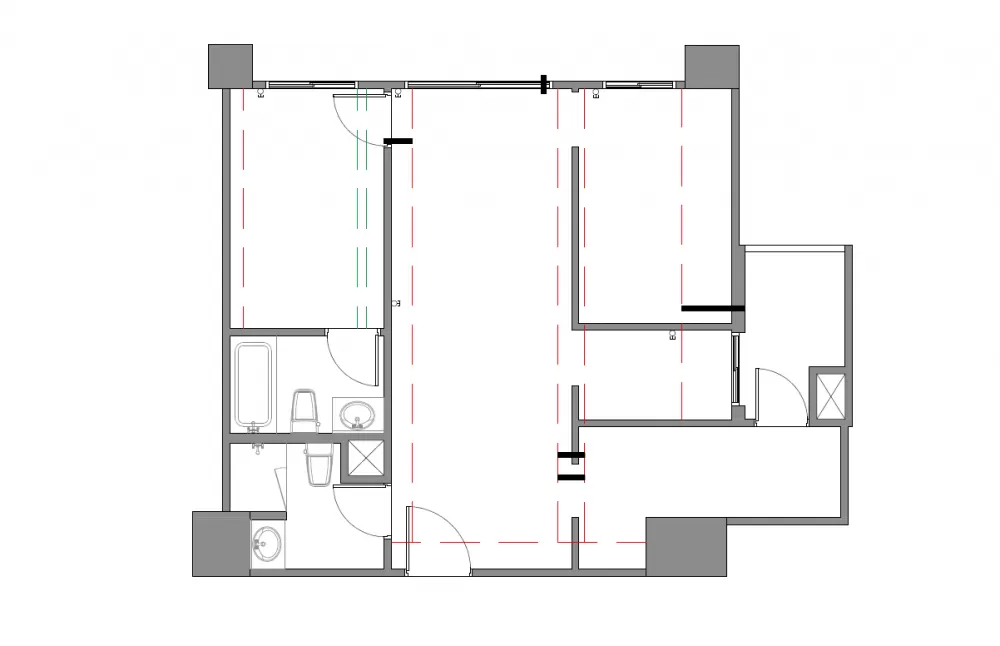
Before平面圖
.jpg)
After平面圖
.jpg)
1.原本被退掉的門改成了隱藏門、拉門的設計,設計師說這樣空間會更開闊。
2.做了獨立玄關,玄關兩側都加了收納,還做了格柵裝飾,兼具屏風效果。
3.除了主臥室和那間小小的儲藏室,多的那一間房設定為多功能室,要能放電鋼琴,然後我衣服很多,主臥室空間也不夠做太多衣櫃,所以這間房還多規劃了整面衣櫃XD
4.因為當初失心瘋先買了沙發,後來其他裝潢包括一些木頭顏色、紋路都是去參考沙發的樣式去搭配的。
四、施工過程
櫃子幾乎都是以系統櫃為主,主要是不需要做特別的造型,而且系統櫃都是方方正正的比較少死角,打掃起來也比較輕鬆。
.jpg)
因此木作就集中火力在天花板、玄關格柵這些地方~
.jpg)
.jpg)
五、完工分享
玄關
完工美照真的迫不急待跟大家分享!!這是一進門的樣子~完全就是很舒服、開闊的氛圍。
.jpg)
以格柵+半玻璃的方式做出了屏風,下方則是櫃子,這樣的屏風不僅不會讓人覺得太壓迫,而且也不會擋到採光,導致整個玄關看起來很陰暗狹窄。
.jpg)
餐廳
公領域是比較長形的,客廳旁邊剛好有位置放餐桌椅~這邊我們選了喜歡的餐桌和餐椅,再請設計師提供選色建議,那因為桌子有導圓角,餐椅也是選擇比較柔和的款式,再搭上一盞圓圓的栗子吊燈,整個非常可愛又溫馨~超喜歡!
.jpg)
.jpg)
客廳
由於坪數不大,設計師把客廳的天花板盡量挑高,看起來會比較開闊些,另外也建議裝個吊扇,說這樣蠻符合我們家風格,而且也不用另外買電扇(占空間又不好看),後來我們在GOODFAN挑到了一眼就超喜歡的吊扇,裝上了以後效果真的很不錯,天花板不會看起來空空的。順帶一提,一開始失心瘋先買的沙發是QUATTIS十刻的~很喜歡他們家具家飾的風格,還有整個木製做工的細緻度都很棒。
.jpg)
.jpg)
因為房間門位置的關係,導致電視牆原本看起來還蠻窄的,不過設計師索性規劃了木頭色的隱藏門,然後有再加寬一些,讓門和裝飾性的木作融合,另一個房門則是和電視牆一樣的白色系,這樣望過去真的有種電視牆很寬闊的感覺耶!

.jpg)
.jpg)
廚房
最後廚房選了玻璃拉門,那時有跟設計師提到喜歡復古風的玻璃,希望整面都用海棠花玻璃,但設計師說做整面容易看起來俗氣,於是就混搭了波紋玻璃,有種復古與現代融合、迸出新滋味的感覺XD
.jpg)
對了!廚房外面的開放式櫃體是我拿來放包包的,旁邊封閉式的可以收雜物,還有比較大型的物品如小提琴盒等等。
.jpg)
多功能室
這裡的主要功能就是放琴和收納(沒有琴的那面牆都是我的衣櫃),當然這邊空間也夠,如果有親友拜訪,也能當客房使用喔!
.jpg)
臥室
臥室這邊想要柔和一點的感覺,所以床頭跳了一個淺奶茶色,而且也有裝蜂巢簾,入住後才發現蜂巢簾很重要,像寒流來的時候真的覺得會讓室內暖一點XD
.jpg)
衣櫃上方和多功能室的櫃子一樣,都有再把櫃子加做到頂,擴大更多收納機能。
.jpg)
六、裝修後記
經歷這次裝修~我覺得有三個大重點簡單跟大家分享:
1.確認需求和喜歡的風格
如果你跟我們一樣是預算有限的小資族,那一定要好好審視自己和家人所有的需求,錢錢一定要花在刀口上啊~像我們本身非常喜歡有設計感的家具,也很捨得花錢在這上面,那當然就必須在其他地方做取捨。風格也很重要,一定要多做功課確認喜歡的風格,而且也是有了這次裝潢經驗,才覺得找到作品符合喜歡風格的設計師真的很重要,中間會省下很多溝通的時間,有時候我們只是提個想法,設計師就知道我們想要的是什麼。
2.一定要留設計師的預算
裝潢這件事,真的不是油漆刷一刷、家具擺一擺就夠的,以前因為租屋只能買現成家具,有些使用起來其實很卡,但是找設計師的好處是會針對我們的需求、身形、使用習慣去量身打造櫃子的尺寸,另外,像是家具款式和顏色的搭配,我們不是設計本業的人真的很難搭得多好看,這些真的都要仰賴專業,成果才會好用又美美的!
3.斷捨離
裝潢前要盤點一下到底哪些東西要留,不然住進去一下東西就塞滿了,那就白做櫃子啦!所以我們有先好好的斷捨離~那也因為新家收納很充足,我們目前還有很多空間可以收。
以上就是我們新家的開箱分享,非常謝謝看完的你XD
也一定要再感謝一下我們的設計師Joanna設計了這麼漂亮溫馨的家,新家的每一個角落住到現在都好喜歡!
最後跟大家分享我們最近佈置的咖啡區,看外面窗景喝個咖啡真的超愜意呀~
.jpg)
文章出處:100室內設計
文章連結:櫃子做到頂,18坪收納多炸1倍!開箱我的舒適日系小宅 (100.com.tw)